The VineyardHouse is a sanctuary of glass and light, where every window frames a different vineyard panorama. Nestled in the sought-after Glen Oak Hills community, this home offers the rare luxury of wide-open space and panoramic horizon lines, all while staying anchored in one of the region’s most storied residential enclaves.
Vineyard House
Vineyard House
360 Views









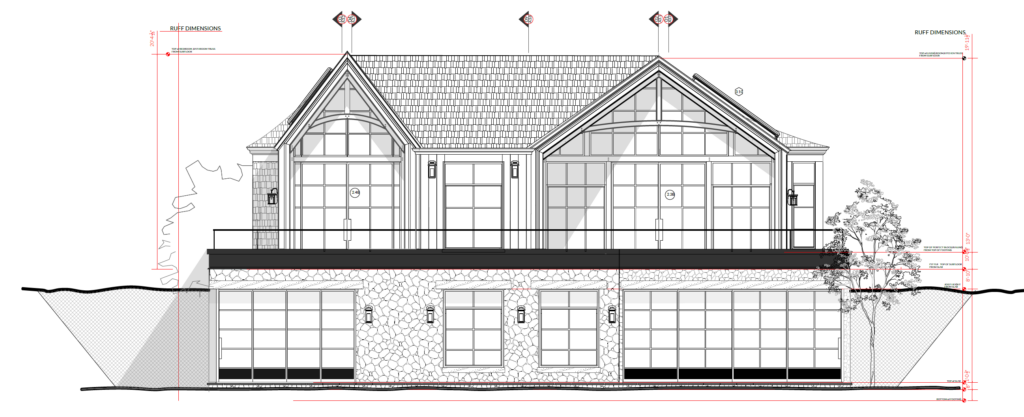
Elevations
Architectural Composition
The elevations showcase an open-ended gabled form designed to maximize the site’s “360-views.” The structure is characterized by:
-
Oak Framed Trusses: The drawings highlight a robust oak timber frame. This choice isn’t just aesthetic; oak is used for its durability and its ability to create the characteristic curves and arches seen in the vaulted roof spaces and wall braces.
-
Full-Height Glazing: The design utilizes expansive glass walls to frame the vineyard panorama, creating a “sanctuary of light.”
-
Integrated Sun Control: To manage heat gain in such a glass-heavy design, the elevations account for motorized angled roller shades. These are custom-fabricated to disappear directly into the window mullions, maintaining a clean architectural line.




Motorized Angled Roller Shades
Design & Functionality
-
Purpose: These shades address the high priority of sun control required by the building’s open-ended gabled form and expansive full-height glazing.
-
Integration: The system is custom-fabricated to ensure that the roller blinds disappear directly into the window mullions when not in use.
-
Aesthetic Preservation: By hiding the hardware within the structural framing, the design maintains the clean, unobstructed lines of the vineyard panorama.
High-Performance Context
These shades are part of a broader “building science” approach to achieve a Net-Positive energy rating. By managing solar heat gain through automated shading, the home reduces its cooling load, helping it produce more energy than it consumes.
disappear into the window mullions.

Oak Framed truss
Design & Structural Integrity
-
Material Strength: Oak is utilized because it is the most robust and durable timber, making it ideally suited for heavy timber framing.
-
Architectural Character: The timber framing allows for the creation of characteristic curves and arches often found in wall braces and vaulted roof spaces.
-
Visual Warmth: These trusses provide a natural, grounded contrast to the home’s extensive glass walls and modern steel elements.
Integration with Modern Systems
While the trusses provide a historic, handcrafted feel, they are integrated into a high-tech building envelope:
-
Precision Engineering: The home’s primary structure uses FRAMECAD technology to ensure accuracy to less than a millimeter.
-
Net-Positive Performance: The oak framing is part of a building-science approach designed to create a high-performance, energy-efficient home.

Finishes

The build

System Overview
FRAMECAD is an end-to-end design and manufacturing solution for cold-formed steel (CFS), also known as light-gauge steel. It integrates advanced BIM (Building Information Modeling) software directly with automated roll-forming machinery to streamline the entire building process.
Key Benefits in This Build
-
Precision Engineering: The system ensures structural accuracy to less than a millimeter. This level of precision is critical for the Vineyard House’s complex geometry and its seamless integration of large-scale glazing.
-
Accelerated Construction: By prefabricating components off-site, the building timeframe is significantly reduced. Panels and trusses arrive on-site labeled and ready for rapid assembly, often cutting months off traditional construction schedules.
-
Sustainability & Efficiency: The technology minimizes material waste to less than 1% (compared to roughly 20% in traditional wood framing). Additionally, the steel used is 100% recyclable, supporting the project’s Net-Positive energy goals.
-
Integrated Design-Led Process: The software suite (including FRAMECAD Structure and Detailer) performs real-time engineering calculations as the design is created, ensuring every element meets strict building codes and load requirements before a single piece of steel is cut.
Core Components
-
FRAMECAD Software: Used to design, detail, and engineer the light-gauge steel frames with instant structural analysis.
-
Automated Roll-Forming Machines: These machines take digital files and “print” the steel members—punching, cutting, and labeling each piece with absolute accuracy.
-
Manufacturing Management: Platforms like FRAMECAD Nexa provide real-time visibility into the production process, helping manage capacity and quality control.

In the Vineyard House project, The Perfect Block system is used for the construction of the walk-out basement to provide extreme structural resilience and environmental sustainability.
Performance Specifications
This composite insulated concrete form (ICF) system is engineered to withstand extreme conditions:
-
Wind Resistance: Can stand up against 250mph winds.
-
Seismic Durability: Engineered to survive a magnitude 8.0 earthquake.
-
Fire Safety: Tested to withstand temperatures up to 4,000°F for four hours.
Sustainability & Efficiency
The system aligns with the home’s Net-Positive goals by optimizing material use:
-
Recycled Content: Utilizes materials made primarily of recycled content, specifically minimizing the use of virgin foam insulation.
-
Resource Management: Designed to reduce the amount of concrete needed and engineered to avoid the use of steel where feasible.
-
Insulation: Provides a high-performance thermal envelope that contributes to the home’s overall energy efficiency.

Custom Cabinetry & Design
The project emphasizes “Next Level” cabinetry by combining historic cabinet details with current technology:
-
Construction Method: The home features custom-built cabinet boxes designed to elevate standard residential storage into high-performance architectural elements.
-
Craftsmanship: The design process incorporates specialized details, such as those showcased by NS Builders, to create sophisticated, durable cabinet boxes.
-
Integration: These finishes are part of the broader Hilltop House aesthetic, which balances the “visual warmth” of oak framed trusses with the clean, modern lines of the steel and glass structure.



























